April 25, 2023
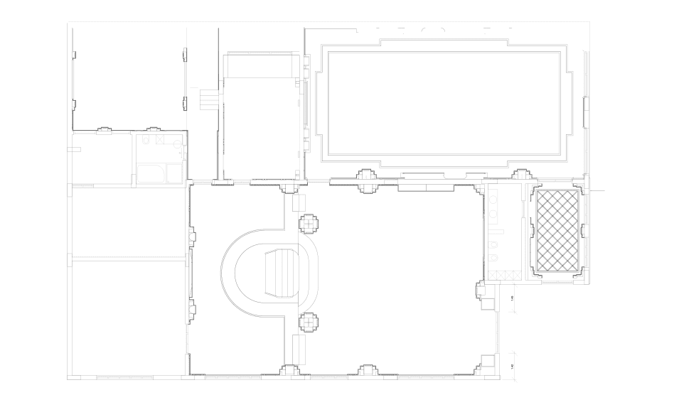
A wonderful and special mansion In finishing the appearance of this luxury exterior by the Doric team, the sketchers have a vibe to pull off open spaces, a relaxing vibe, trademark land spaces, and a moderate color palette.
The structure plan is incredibly midcentury yet especially warm and pleasant.
We finished the appearance of the mansion with a blend of present-day and conventional designs. We managed the whole facade from the beginning stage until turnover. Choices with sourcing and plans began from the forefront. The perfect structure looks clean, with the enormous windows and sliding passages adding to the forefront of beauty.
The work of Doric Company under the guidance of Ahmed jalil is completely compatible with stealing your hearts with its incredible sense of beauty and an interesting approach to filling the interior, furniture design and a subtle reception of detail.
Do you believe that neutral hues are dull? We will dispel the idea that being brave is preferable.There are plenty of good reasons to go with a neutral color plan for your home design, but there is always a place in your life for vibrant flashes of color.
By allowing the project to have a streamlined and great efficiency in every design detail of work, each project is being accomplished in the finest quality and high standards of design result for architecture and interior design. Each masterpiece always achieves the most efficient and effective work by performing a complete turnkey project solution.